Omschrijving
Representatieve kantoorruimte gelegen op de Oostdijk van Sommelsdijk. De kantoorruimte heeft een compleet opleveringsniveau, w.o. nieuwe vloerbedekking, binnen-schilderwerk en wandafwerking, ruime daglichttoetreding en voorzien van parkeergelegenheid aan de achterzijde. Het gebouw is tevens voorzien van een kelder-/opslagruimte (5.27mx6.33m), hoogte 2.15m. Deze is eveneens bereikbaar via de achterzijde.
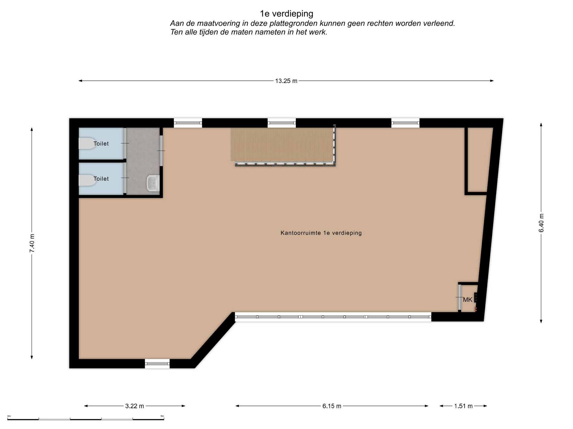
Indeling:
Circa 170m2 kantoorruimte, verdeeld over entree/begane grond (ca. 85m2) met pantry en met vaste trap bereikbare 2e verdieping (ca. 85m2) voorzien
van toiletgroep en opstelplaats Cv-ketel (merk Nefit Excellent, bouwjaar 1997).
Bestemming: Gemengde bestemming
Bron: www.ruimtelijkeplannen.nl :
De voor 'Gemengd' aangewezen gronden zijn bestemd voor:
a. op de begane grondlaag van gebouwen:
1.ateliers en galeries;
2.bedrijfsactiviteiten in milieucategorie 1 en 2 van de Staat van Bedrijfsactiviteiten, opgenomen in bijlage 1van deze regels, met uitzondering van:
*risicovolle inrichtingen;
*geluidzoneringplichtige inrichtingen;
*zelfstandige detailhandel;
3.dienstverlening;
4.kantoren;
5.maatschappelijke voorzieningen;
6.sportvoorzieningen;
7.productiegebonden detailhandel;
8.wonen, inclusief beroep en/of bedrijf aan huis (waaronder bed & breakfast), met dien verstande dat dit niet is toegestaan ter plaatse van de aanduiding 'wonen uitgesloten';
b. op de verdiepingen van de gebouwen:
1. wonen, inclusief beroep en/of bedrijf aan huis (waaronder bed & breakfast), met dien verstande dat dit niet is toegestaan ter plaatse van de aanduiding 'wonen uitgesloten'
de onder a.1 tot en met a.7 genoemde functies, voor zover deze reeds bestaan;
2. de onder a.1 tot en met a.7 genoemde functies voor zover deze reeds bestaan.
Voor meer info verwijzen wij naar de gemeente Goeree-Overflakkee, afdeling Ruimtelijke Ordening, telefoon 14-0187.
Energielabel: A+++, geldig t/m 26 oktober 2031.
Voorzieningen/specificaties:
• representatieve centrale entree;
• meterkast;
• stalen trapopgang met hardhouten treden;
• isolerende beglazing;
• PVC entree, tapijt 1e verdieping;
• systeemplafond met verlichtingsarmaturen;
• verwarming middels c.v.-installatie;
• veel daglichttoetreding;
• brandblusmiddelen.
Het kantoorpand is gelegen in een beschermd stads-/dorpsgezicht.
Oplevering per direct.
Collegiale verkoop met Van Vliet Bedrijfsmakelaar Ridderkerk, 0180 434 343
Deze informatie is door ons met de nodige zorgvuldigheid samengesteld. Onzerzijds wordt echter geen enkele aansprakelijkheid aanvaard voor enige onvolledigheid, onjuistheid of anderszins, dan wel de gevolgen daarvan. Alle opgegeven maten en oppervlakten zijn indicatief.
























